alice h parker

This Day in Black History: Dec. 23, 1919

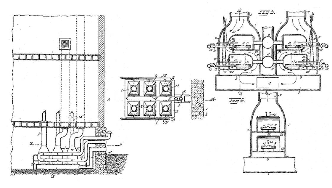
Inventor Alice H. Parker patents the gas heating furnace.
12/23/2012